Amenagement/Agencement home studio (monitoring)

jeromeP
  • Vintage Total utilisateur
  • #1
  • Publié par
    jeromeP
    le
J('ai chercher rapidement dans le forum et je n'ai pas trouvé grand chose ... Alors je lance un petit sujet histoire de recolter quelques avis concernant la partie dédiée musique/home studio de mon nouvel appart' et l'aménagement auquel je suis en train de réfléchir

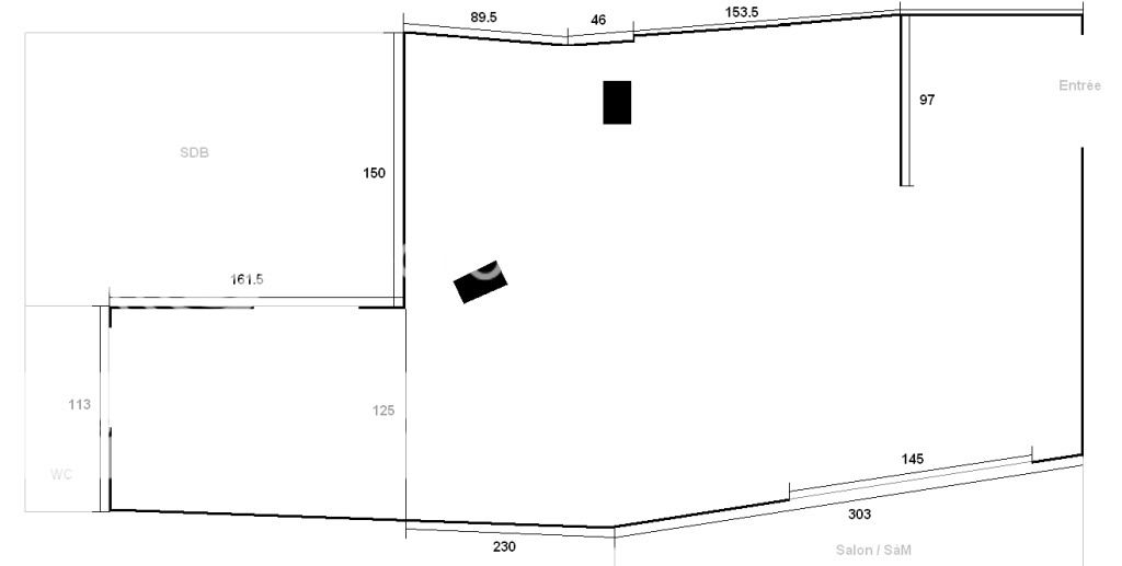
Ci-dessous la pièce, qui fait partie de l'entrée, fait office de passage vers SDb et WC plutôt biscornue.
Pour optimiser une zone pour poser le poste de travail où je compte fabriquer un bureau en coin et une zone dédier à une batterie électronique (qui n'est pas encore là donc je n'ai pas d'empatement précis pour le moment)



Ma grosse interrogation aujourd'hui concerne la partie monitoring.
J'ai une paire de Dynaudio BM5A que j'aimerais placer judicieusement.

Au départ j'avais penser faire comme ci-dessous ... Gros inconvénient : l'espace entre chaque enceinte risque d'être plutôt faible si je veux garder une distance de 40/50cm par rapport au mur arrière et garder une certaine symétrie au niveau des enceinte et des obstacle rencontré et au final ce serais tout aussi efficace de bosser avec un bon casque.



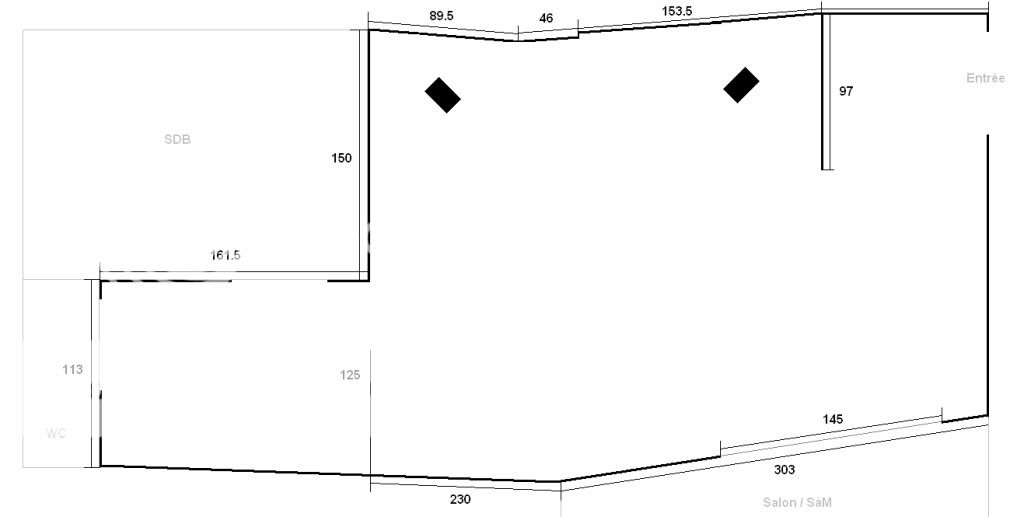
Je me dit que je pourrais tenter de positionner les enceintes en "déportées" ... L'avantage serait de pouvoir avoir un placement correcte et de bénificier efficacement d'une bonne paire de moniteur. L'inconvénient est d'être obligé de "travailler" en déporté.



Voilà tout les avis/conseils sont les bienvenus
zoemix
  • Vintage Ultra utilisateur
  • #2
  • Publié par
    zoemix
    le
et pourquoi pas les "adosser" au mur coté 150 (quand je dis adosser, c-à-dire à 50cm) une fois ce mur traité acoustiquement avec quelque bouts de mousse judicieusement placés ?

tu tourneras juste le dos à la batterie, mais bon, voir la tronche du batteur, j'imagine que c'est pas primordial...


"J'ai cru que tu faisais la gueule. Ou pire, que tu étais émotif."

Je suis l'un des bassistes de PöWëR-4
fxdfxd
  • Vintage Ultra utilisateur
    Cet utilisateur est un fabricant d'instruments et matériel audio
  • #3
  • Publié par
    fxdfxd
    le
Hello Jerome

Pour avoir frequente pas mal le forum de john sayer, que je te recommande chaudement si tu veux faire un truc pousse, voici qq regles qui peuvent s'appliquer dans ton cas :

- ne te preoccuope pas de la distance entre les enceintes et le mur, car c'est bcp plus complexe que ca, tu peux les coller contre, ou meme les monter integree, si tu veux bricoler un peu :



Cherche sur les forum avec le terme soffit mount !

- il faut que ta piece soit absolument symetrique des enceintes et derriere elles, jusqu'a tes oreilles, apres derriere toi c'est moins grave
Donc pour toi, ca signifie augmenter legerement ta cloison a droite dans la deuxieme configuration que tu proposes !
qq panneaux absorbant au mur derriere toi, devant et sur les cotes, et ca devrait etre pas mal deja !

-fx
Fabricant des amplis
Fxamps et ACE amps
Rejoignez le Fxamps user club !!!
jeromeP
  • Vintage Total utilisateur
  • #4
  • Publié par
    jeromeP
    le
@zoemix : L'idée du mur 150 était la toute 1ère mais les écoute ne serait pas sysmétrique (du fait qu'il y aurait un mur juste à côté d'une enceinte et pas de l'autre) donc l'idée ne me plaisais pas.

Pour la batterie, le "travail" avec le batteur sera en répét' basse/batterie. Le reste du temps sera pour moi ou ma copine en pratique/enregistrement de maquette donc pas obligé d'être en face à face

@fxdfxd : Très interressant cette technique. Je vais me renseigner plus sur le sujet, j'étais passer sur le forum de John Sayer sans trop savoir quoi chercher. Je ne cherche pas à faire un truc ultra poussé mais de quoi faire des maquettes qui tienne la route et surtout que l'aménagement/l'agencement de la pièce tienne la route par rapport à la qualité des enceintes. Parce que sinon autant ressortir mes vielles Salmson
fxdfxd
  • Vintage Ultra utilisateur
    Cet utilisateur est un fabricant d'instruments et matériel audio
  • #5
  • Publié par
    fxdfxd
    le
Alors la regle principale, mais absolue, c'est la symetrie !
Tout le reste c'est du bonus

En general la suite c'est : eviter que les ondes directes de ton HP ne se melangent avec les ondes reflechies par les murs !
Pour ca tu as pleins de techniques, generalement l'absorbption ET/OU la diffusion.
Regarde sur le net a "reflection free zone" et la tu vas commencer a comprendre
En general c'est pour ca que tu te retrouve avec des formes complexes pour les control room !

Tiens regarde ce que j'ai dessine pour le mien (valide par un pro !!!) :



Si t'as des questions demande moi, je suis pas un pro mais j'ai bien potasse le sujet pour dessiner le mien, et j'ai pas mal de bouquin
BOnne chance
-fx
Fabricant des amplis
Fxamps et ACE amps
Rejoignez le Fxamps user club !!!
jeromeP
  • Vintage Total utilisateur
  • #6
  • Publié par
    jeromeP
    le
Classe le studio ! Je compte bien un jour devenir propriétaire et compte bien pouvoir me faire un home studio/local digne de ce nom

Pour le moment je suis en location, le coup de monter mes moniteur encastré dans le mur n'est pas forcément un truc facilement réalisable à mon sens ... Je ne vais pas forcément y rester indéfiniment (1ans ... 2ans tout au plus !)

Est ce que tu pense que 2 colonnes installée le long du mur du fond pour y encaster les enceintes peut avoir un interet ? Ca evite les travux "lourd", ça reste modulaire en cas de besoin de place etc etc ...
fxdfxd
  • Vintage Ultra utilisateur
    Cet utilisateur est un fabricant d'instruments et matériel audio
  • #7
  • Publié par
    fxdfxd
    le
Je sais pas ...
Moi ce que je ferai, c'est creer deux bass trap derriere tes enceintes.
Soit en panneaux :



Soit les corners chunk :



Tu peux aussi mettre des panneaux sur les cotes, dont un sur pied, qui va remplacer ta cloison a droite (ca la remplacera pas, mais ca aidera ptet pour la symetrie)

Bon courage !
-fx
Fabricant des amplis
Fxamps et ACE amps
Rejoignez le Fxamps user club !!!
jeromeP
  • Vintage Total utilisateur
  • #8
  • Publié par
    jeromeP
    le
L'idée du bass trap via un cadre à l'arrière me plais bien
Avec les moniteur simplement posé proche du mur.

J'avais l'intention de faire en effet une sorte de cloison pour rendre le tout plus ou moins symétrique. Etant donné que j'ai l'entrée juste à coté c'est pas idéal de faire un système en fixe à cet endroit.
fxdfxd
  • Vintage Ultra utilisateur
    Cet utilisateur est un fabricant d'instruments et matériel audio
  • #9
  • Publié par
    fxdfxd
    le
Tu peux faire un truc du genre :



Tu mets une plaque de placo ou deux, montee sur pieds. Apres tu fixes un cadre dessus, absorbant, et le meme de l'autre cote.
Mets en aussi au fond de ta piece, ca evitera les reflexions indesirables !
A mon avis, un aborbeur ou deux sur le mur derriere les enceintes, des bass trap dans les coins (corner chunk ou alors le meme genre d'asborbeur, fixe en coin), deux sur les cotes, 2/3 derriere et la tu devrais avoir un resultat plutot pas mal !
N'oublie pas non plus le plafond, souvent neglige, mais une ou deux plaques suspendues, ca ne fait pas de mal !
Si tu es bricoleur, tu t'en tireras pour moins de 250e le tout

Inspire toi :



-fx
Fabricant des amplis
Fxamps et ACE amps
Rejoignez le Fxamps user club !!!
jeromeP
  • Vintage Total utilisateur
fxdfxd a écrit :
:



-fx


Classe
Je commence à bien imaginer ce que je peut mettre plus ou moins en place.
Sur les coins et arrière je vois bien le côté bass trap et autre absorbeur. Pour le plafond qui est plat j'installerais bien un sorte de "tenture", je ne sais pas si cela a un réel intérêt

Concernant les bass trap, pas besoin de varier les matériaux ? (j'ai vu ton post en parallèle sur le local de répét') Vu que j'aurais une alternance bass trap / mur placo.

Je ferais bien des panneaux absorbant en liège ?
fxdfxd
  • Vintage Ultra utilisateur
    Cet utilisateur est un fabricant d'instruments et matériel audio
  • #11
  • Publié par
    fxdfxd
    le
Non, reste sur la laine de roche, le reste c'est blabla (et cher en plus).
Pour les basstrap, plus t'en mets, mieux c'est ! TU peux aussi laisser de l'air derriere, ca ameliore encore les choses. Ne prends pas de la laine de roche trop dense, 60kg/m3 c'est parfait !
Pour la tenture, non aucun interet !

-fx
Fabricant des amplis
Fxamps et ACE amps
Rejoignez le Fxamps user club !!!

En ce moment sur home-studio...